三重県名張市安部田の中古売買戸建物件(近鉄大阪線:赤目口より13分)
三重県名張市安部田の中古売買戸建物件(近鉄大阪線:赤目口より13分)です。また、三重県名張市安部田の中古売買戸建物件(近鉄大阪線:赤目口より13分)に限らず、全国の賃貸物件・売買物件・不動産会社・不動産鑑定所・貸主売主登録物件・マンション・アパート・戸建・別荘・土地・店舗・事務所・テラスハウス・工場・倉庫・駐車場・ペット可・デザイナーズ・田舎暮らしの不動産情報が検索できます。当サイトでは極力、成約済物件、おとり物件、重複物件の掲載を行わない様に、また信頼性の高い物件のみを掲載する様に努めております。
*田舎暮しや家庭菜園も楽しめます。 *敷地内から宇田川も眺められ、散策も楽しめます。 *畑があるので家庭菜園も楽しめます。 *空きスペースでドッグランなどにも!! *古民家カフェや古民家レストランなどにも如何! *建物の玄関部分は傷んでおり補修が必要です。 **建物は未登記建物です。 *所々に雨漏りの痕跡などもあります。 *庭周りの整地中!残置物の処分中! *農地部分は農地法の許可が必要です。 *土地建物全てに於いて現状有姿渡しとします。


| 物件名 | 三重・名張・安部田 | ||
| 種類 | 中古売買戸建 | 価格 | 880万円 |
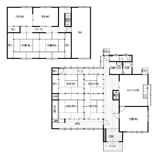
| 間取 | 管理費 | ||
| 土地面積 | 1334.54平米 403.71坪 | 地代 | |
| 建物面積 専有面積 |
199.94平米 60.48坪 | 建ぺい率 容積率 |
60% 200% |
| 坪単価 | 2.2万円 | 修繕積立金 | |
| バルコニー | その他費用 | ||
| 面積計測方式 | 公簿 | 取引形態 | 専任 |
| 構造 | 木造2階建 | 土地権利 | 所有権 |
| 戸数 | 国土法 | ||
| 築年月 | 1972年11月 | 都市計画 | 市街 |
| 接道 | 東南 約5m・北東 約4m・公道 | 用途地域 | 無指定地域 |
| 地目 | 宅地、畑 | 建築条件 | |
| 現況 | 更地 | 引渡時期 | 即時 |
| 建築確認番号 | |||
| 所在地 | 三重県名張市安部田 地図と周辺施設 | ||
| 最寄駅 | 近鉄大阪線:赤目口より13分 | ||
| 最寄駅2 | |||
| 最寄駅3 | |||
| 連絡先名 | 三重県名張市希央台4番町53番地の不動産情報:(有)エムズエステート お問合せ | ||
| 連絡先住所 | 三重県名張市希央台4番町53番地 | ||
| 電話番号 | 0595-62-2221 | 免許番号 | 三重県知事(6)第2711号 |
| 物件番号 | 次回更新日 | 2025年11月23日 | |
|
|
この物件に関して問い合わせるには、お問合せをクリックしてください。
この物件情報を電子メールで送信する方法を知るには、 メール送信方法をクリックしてください。
物件を賃貸、売買する際は不動産鑑定所に依頼して物件を調査し、正確な物件に関する情報を得る事をおすすめ致します。
物件sでは全国の賃貸物件,売買物件,不動産会社,不動産鑑定所,貸主売主登録物件,マンション,アパート,戸建,別荘,土地,店舗,事務所,テラスハウス,工場,倉庫,駐車場,ペット可,デザイナーズが検索できます。