奈良県大和郡山市横田町の売買土地物件(近鉄橿原線:筒井より28分)
奈良県大和郡山市横田町の売買土地物件(近鉄橿原線:筒井より28分)です。また、奈良県大和郡山市横田町の売買土地物件(近鉄橿原線:筒井より28分)に限らず、全国の賃貸物件・売買物件・不動産会社・不動産鑑定所・貸主売主登録物件・マンション・アパート・戸建・別荘・土地・店舗・事務所・テラスハウス・工場・倉庫・駐車場・ペット可・デザイナーズ・田舎暮らしの不動産情報が検索できます。当サイトでは極力、成約済物件、おとり物件、重複物件の掲載を行わない様に、また信頼性の高い物件のみを掲載する様に努めております。
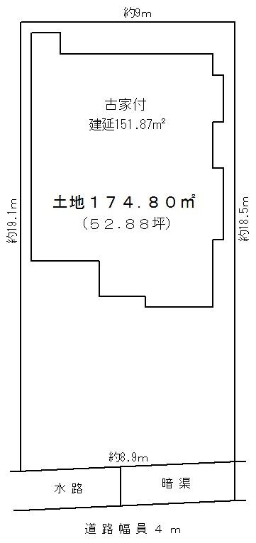
既存宅地に付、再建築可能! 南向き!


| 物件名 | 大和郡山市横田町 | ||
| 種類 | 売買土地 | 価格 | 720万円 |
| 間取 | 管理費 | ||
| 土地面積 | 174.80平米 52.88坪 | 地代 | |
| 建物面積 専有面積 |
建ぺい率 容積率 |
70% 400% |
|
| 坪単価 | 13.6万円 | 修繕積立金 | |
| バルコニー | その他費用 | ||
| 面積計測方式 | 公簿 | 取引形態 | 専任 |
| 構造 | 土地権利 | 所有権 | |
| 戸数 | 国土法 | 不要 | |
| 築年月 | 都市計画 | 調整 | |
| 接道 | 公道4m | 用途地域 | |
| 地目 | 宅地 | 建築条件 | 無 |
| 現況 | 上物有 | 引渡時期 | 即可能 |
| 建築確認番号 | |||
| 所在地 | 奈良県大和郡山市横田町 地図と周辺施設 | ||
| 最寄駅 | 近鉄橿原線:筒井より28分 | ||
| 最寄駅2 | JR桜井線:櫟本より20分 | ||
| 最寄駅3 | |||
| 連絡先名 | 大阪府大阪市中央区高麗橋2丁目2番7号東栄ビル604号の不動産情報:エクセルホーム株式会社 お問合せ | ||
| 連絡先住所 | 大阪府大阪市中央区高麗橋2丁目2番7号東栄ビル604号 | ||
| 電話番号 | 06-6233-9330 | 免許番号 | 大阪府知事(1)第57342号 |
| 物件番号 | 次回更新日 | 2015年2月28日 | |
|
この物件に関して問い合わせるには、お問合せをクリックしてください。
この物件情報を電子メールで送信する方法を知るには、 メール送信方法をクリックしてください。
物件を賃貸、売買する際は不動産鑑定所に依頼して物件を調査し、正確な物件に関する情報を得る事をおすすめ致します。
物件sでは全国の賃貸物件,売買物件,不動産会社,不動産鑑定所,貸主売主登録物件,マンション,アパート,戸建,別荘,土地,店舗,事務所,テラスハウス,工場,倉庫,駐車場,ペット可,デザイナーズが検索できます。