大阪府大阪市東成区大今里南5丁目の中古売買戸建物件(近鉄大阪線:今里より5分)
大阪府大阪市東成区大今里南5丁目の中古売買戸建物件(近鉄大阪線:今里より5分)です。また、大阪府大阪市東成区大今里南5丁目の中古売買戸建物件(近鉄大阪線:今里より5分)に限らず、全国の賃貸物件・売買物件・不動産会社・不動産鑑定所・貸主売主登録物件・マンション・アパート・戸建・別荘・土地・店舗・事務所・テラスハウス・工場・倉庫・駐車場・ペット可・デザイナーズ・田舎暮らしの不動産情報が検索できます。当サイトでは極力、成約済物件、おとり物件、重複物件の掲載を行わない様に、また信頼性の高い物件のみを掲載する様に努めております。
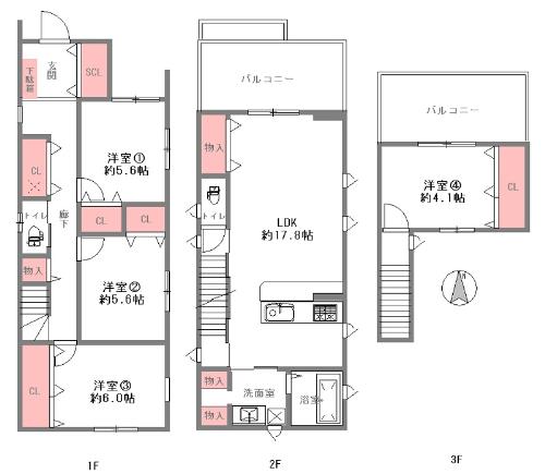
★2WAYアクセス可★4LDK★食洗器・浴室乾燥機付き★ *近鉄大阪線「今里」駅 徒歩5分*大阪メトロ千日前線「小路」駅 徒歩7分 *大阪メトロ千日前線「新深江」駅 徒歩7分 *リフォーム済[2025年6月]・システムキッチン新調・便器・温水洗浄便座新調 ・浴室ユニットバス新調・洗面化粧台新調・クロス貼替え・給湯器(追炊付)新調 ※設置されている家具・小物・照明はディスプレイ用です。家具・照明付き販売ではございません


| 物件名 | 大阪・東成・大今里南 | ||
| 種類 | 中古売買戸建 | 価格 | 3,990万円 |
| 間取 | 4LDK | 管理費 | |
| 土地面積 | 93.06平米 28.15坪 | 地代 | |
| 建物面積 専有面積 |
111.20平米 33.64坪 | 建ぺい率 容積率 |
70% 200% |
| 坪単価 | 141.7万円 | 修繕積立金 | |
| バルコニー | 有 | その他費用 | |
| 面積計測方式 | 公簿 | 取引形態 | 専任 |
| 構造 | 木造3階建 | 土地権利 | 所有権 |
| 戸数 | 国土法 | ||
| 築年月 | 2015年2月 | 都市計画 | 市街 |
| 接道 | 北側 4m 私道 | 用途地域 | 準工業地域 |
| 地目 | 宅地 | 建築条件 | |
| 現況 | 空き | 引渡時期 | 相談 |
| 建築確認番号 | |||
| 所在地 | 大阪府大阪市東成区大今里南5丁目 地図と周辺施設 | ||
| 最寄駅 | 近鉄大阪線:今里より5分 | ||
| 最寄駅2 | 大阪メトロ千日前線:少路より7分 | ||
| 最寄駅3 | 大阪メトロ千日前線:新深江より7分 | ||
| 連絡先名 | 三重県名張市希央台4番町53番地の不動産情報:(有)エムズエステート お問合せ | ||
| 連絡先住所 | 三重県名張市希央台4番町53番地 | ||
| 電話番号 | 0595-62-2221 | 免許番号 | 三重県知事(6)第2711号 |
| 物件番号 | 次回更新日 | 2026年3月15日 | |
|
|
この物件に関して問い合わせるには、お問合せをクリックしてください。
この物件情報を電子メールで送信する方法を知るには、 メール送信方法をクリックしてください。
物件を賃貸、売買する際は不動産鑑定所に依頼して物件を調査し、正確な物件に関する情報を得る事をおすすめ致します。
物件sでは全国の賃貸物件,売買物件,不動産会社,不動産鑑定所,貸主売主登録物件,マンション,アパート,戸建,別荘,土地,店舗,事務所,テラスハウス,工場,倉庫,駐車場,ペット可,デザイナーズが検索できます。