
神奈川県横浜市中区本牧原の中古賃貸マンション物件(JR根岸線 バス利用:石川町より12分)
神奈川県横浜市中区本牧原の中古賃貸マンション物件(JR根岸線 バス利用:石川町より12分)です。また、神奈川県横浜市中区本牧原の中古賃貸マンション物件(JR根岸線 バス利用:石川町より12分)に限らず、全国の賃貸物件・売買物件・不動産会社・不動産鑑定所・貸主売主登録物件・マンション・アパート・戸建・別荘・土地・店舗・事務所・テラスハウス・工場・倉庫・駐車場・ペット可・デザイナーズ・田舎暮らしの不動産情報が検索できます。当サイトでは極力、成約済物件、おとり物件、重複物件の掲載を行わない様に、また信頼性の高い物件のみを掲載する様に努めております。
礼金0円物件!保証会社利用の場合は敷金0円!フリーレント1ヶ月! 先取情報10月上旬入居可!鍵は当社に有ります!即案内可!24時間緊急対応 マイカル本牧隣接 サティ本牧(スーパー)はPM10:00まで毎日営業 イトーヨーカ堂 映画館 図書館 ミニストップ bookoff 文教堂書店 ローソン KFC モスバーガー等至近 バルコニー/ エアコン/ 給湯追い焚き/ CATV/コンロ/キッチン/ オートロック/エレベータ/ピアノ相談可


物件名 | 【お奨め 礼0・敷0!】パークシティ本牧H棟802 11階 | ||
種類 | 中古賃貸マンション | 賃料 | 14.90万円 |
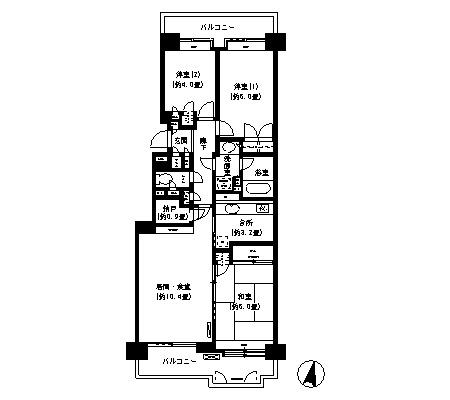
間取 | 3LDK | 共益費 | 8,000円 |
土地面積 | 敷金 | 2.0ヶ月 | |
建物面積 専有面積 |
68.84平米 20.82坪 | 礼金 | なし |
保証金 | |||
坪単価 | 0.7万円 | 更新料 | 新家賃の1ヶ月 |
バルコニー | 有 | 保険料 | 20000円/2年 |
面積計測方式 | 壁芯 | その他費用 | |
構造 | SRC造12階建 | 契約期間 | 2年 |
戸数 | 取引形態 | 一般 | |
築年月 | 1987年3月 | 都市計画 | |
接道 | 用途地域 | ||
地目 | 建築条件 | ||
現況 | 入居引渡時期 | 10月上旬 | |
所在地 | 神奈川県横浜市中区本牧原 地図と周辺施設 | ||
最寄駅1 | JR根岸線 バス利用:石川町より12分 | ||
最寄駅2 | みなとみらい線 バス利用:元町・中華街より15分 | ||
最寄駅3 | JR根岸線 バス利用:根岸より15分 | ||
連絡先名 | 神奈川県横浜市中区池袋345番地の不動産情報:有限会社ケイライン お問合せ | ||
連絡先住所 | 神奈川県横浜市中区池袋345番地 | ||
電話番号 | 045-625-2200 | 免許番号 | 神奈川県知事(5)第19920号 |
物件番号 | 次回更新日 | 2009年11月7日 |
|
|
この物件に関して問い合わせるには、お問合せをクリックしてください。
この物件情報を電子メールで送信する方法を知るには、 メール送信方法をクリックしてください。
物件を賃貸、売買する際は不動産鑑定所に依頼して物件を調査し、正確な物件に関する情報を得る事をおすすめ致します。
物件sでは全国の賃貸物件,売買物件,不動産会社,不動産鑑定所,貸主売主登録物件,マンション,アパート,戸建,別荘,土地,店舗,事務所,テラスハウス,工場,倉庫,駐車場,ペット可,デザイナーズが検索できます。